7 rental homes found
Melbourne
OPEN: Mon 6th Oct 4:30pm - 4:45pm Stunning Top floor Hid...
About the Property Realm Caulfield is located at Caulfie...
Description of the home This beautiful two story older h...
Caulfield North
Receive direct updates of similar homes.
The Phone Code for this property is: 44451. Please quote ...
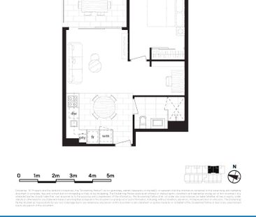
Large apartment just off St Kilda Road. Private courtyard...
386 Burwood Highway, Burwood VIC 3125 ***Disclaimer: pl...
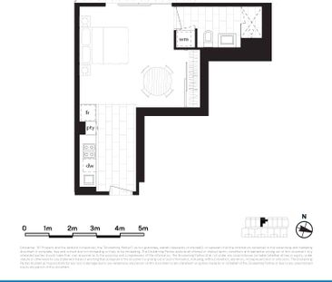
This one-bedroom unit is not to be missed. Located on the...
Discover the perfect blend of comfort and functionality i...
South Melbourne
Nestled just south of Melbourne's CBD, on the edge of ico...
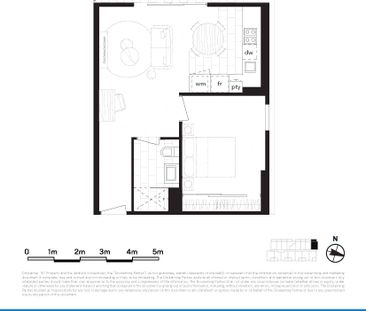
AVAILABLE NOW One bedroom apartment located in the hear...
Clayton Vic
Discover the ideal rooming house property for you at our ...
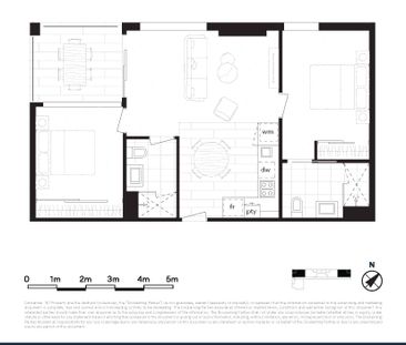
A large apartment in a great location. Very quiet street,...
SPACIOUS STUDIO WITH PLENTY OF SUNLIGHT, KITCHEN SPACE WI...
*** Please click “register now” to receive information re...
Located in the heart of Glen Waverley, this cosy rooming ...