Please try to include as much detail as possible.
Are you interested in this property? Contact the landlord here instead.
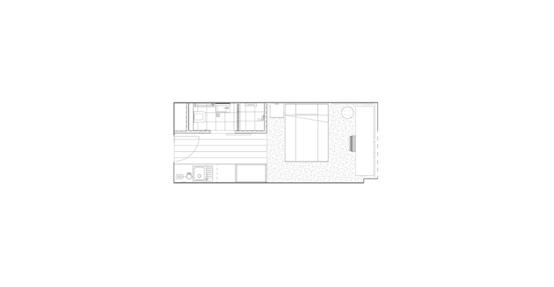
1 Bedroom
-
Studio
15 m²
Copied