Please try to include as much detail as possible.
Are you interested in this property? Contact the landlord here instead.
1 Bedroom
-
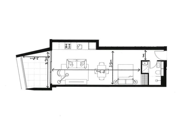
Studio
54 m²
Copied